Lifestyle Lineup

暮らしの提案例ラインナップ

ZEH基準×高耐震×お手頃価格で子育て家族のあたたかい住まいを実現

あったかSMILE

子育て家族の理想と安心がすべて詰まった
月々5万円台からの高性能注文住宅

ZEH基準×高耐震×お手頃価格で子育て家族のあたたかい住まいを実現

ZEH基準×高耐震×お手頃価格で子育て家族のあたたかい住まいを実現

樹脂サッシ、吹付断熱、第一種換気が標準搭載なので、快適かつ健康的な住まいをお届けします。またハイクリンボードで吸音性も良く安心して子供の成長を見守ります。長年、地域密着で子育て家族を応援しながら蓄積した当社オリジナルの設計プランニングで子育て家族の理想の住まいを実現します

  • Ua値:0.6

Photo

  • あったかSMILE
  • あったかSMILE
  • あったかSMILE
  • あったかSMILE
  • あったかSMILE

Feature

あったかSMILEの特徴

  • 長野の地域密着工務店として長年にわたり沢山の子育て家族をサポートしてきた私達だからこそできる「子育てアイデア」が詰まった住まい

    Feature.01

    長野の地域密着工務店として長年にわたり沢山の子育て家族をサポートしてきた私達だからこそできる「子育てアイデア」が詰まった住まい

    「お子様が楽しく家事を手伝える住まい」・「幼いお子様を考えた広々トイレ」・「のびやかな成長を促す見守り導線」等。長野県の地域に密着で数多くのお家をお届けしてきた私達にしかできない「安心・安全・快適」な子育てアイデアがあります

  • Feature.02

    年収300万円から叶う「お手頃価格」×「高品質」の高コスパ住宅

    自社一貫対応で無駄な経費をカットしその分をお客様に還元しています。また一般的な工務店の工事は下請け業者が行いますが、弊社の場合は専任の職人を直接採用し施工しているので中間マージンを排除しています。このような経費削減の仕組化により低価格で高品質な住宅が提供できております。

    年収300万円から叶う「お手頃価格」×「高品質」の高コスパ住宅
  • 子育て世代の方が安心して家づくりをできる安心×安全保証

    Feature.03

    子育て世代の方が安心して家づくりをできる安心×安全保証

    地形や立地条件から土地状況を読み、地盤の強さを調べます。基礎着工日に始まり、お引渡し日から20年間の品質保証をお約束する地盤保証があります。また万が一の事態に備え、新築住宅瑕疵担保責任保険のひとつである「JIO わが家の保険」にご加入いたします。 これにより、お引渡し日から10年間はお住まいに瑕疵が見つかった場合には、瑕疵相当分の保険金をお受取りいただくことができます。

Equipment

標準仕様

  • バスルーム(Panasonic FZ)<br />
※タカラスタンダード・Panasonic・TOTO・クリナップから選択可能

    バスルーム(Panasonic FZ)
    ※タカラスタンダード・Panasonic・TOTO・クリナップから選択可能

  • キッチン(Panasonic ラクシーナ)<br />
※タカラスタンダード・Panasonic・TOTO・クリナップから選択可能

    キッチン(Panasonic ラクシーナ)
    ※タカラスタンダード・Panasonic・TOTO・クリナップから選択可能

  • 高性能樹脂サッシ(APW330)

    高性能樹脂サッシ(APW330)

  • メンテナンスコストがお得になる高性能外壁<br />
(ニチハFUGE)

    メンテナンスコストがお得になる高性能外壁
    (ニチハFUGE)

  • 断熱玄関ドア(ヴェナートD30)

    断熱玄関ドア(ヴェナートD30)

  • 「空気を綺麗にする」タイガーハイクリンボード

    「空気を綺麗にする」タイガーハイクリンボード

  • 家の中まるごとLED

    家の中まるごとLED

  • 安心の460L エコキュート

    安心の460L エコキュート

  • TOTO トイレ<br />
(TOTOとタカラスタンダードで選択可能)

    TOTO トイレ
    (TOTOとタカラスタンダードで選択可能)

  • 高性能グラスウール

    高性能グラスウール

Plan

坪数別間取りプラン

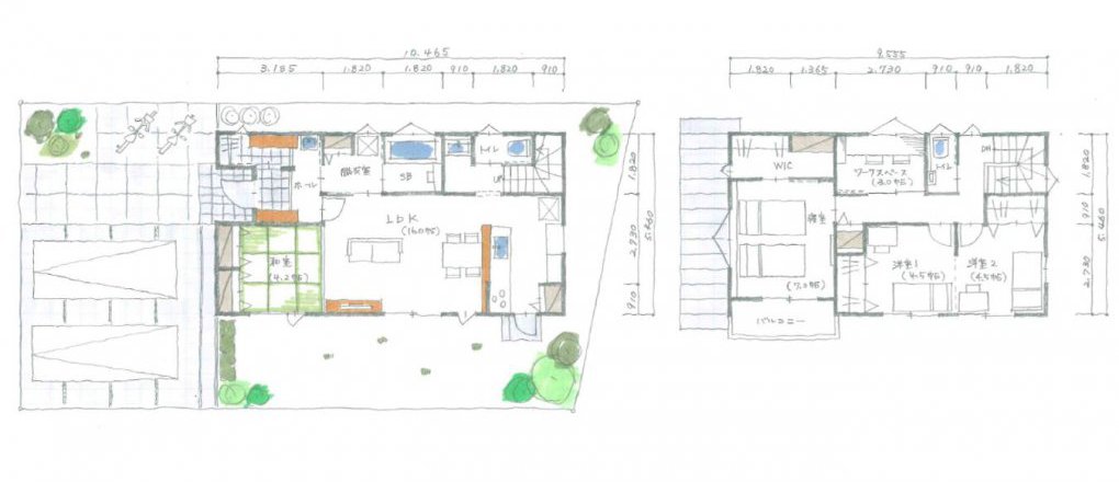
  • 30
    坪プラン

    子育てアイデア満載の家事も子育ても充実するあったかスマイルプラン

    30坪プラン
    30坪プラン
    30坪プラン

    子育て家族の育児も家事も充実し、家族の健康も守れる欲張りプラン

    子育て家族の皆様に多い悩みは「育児と家事の両立が大変」「子供とのコミュニケーションが心配」などを良く聞きます。

    あったか子育て応援住宅はそんな子育て家族に寄り添った考えと徹底したヒアリングをもとに収納の確保やお子様のワークスペース、家族を見守れるカウンターキッチンなど子育てアイデアをふんだんに取り入れたプランをご提案します。

カタログ資料請求 カタログ資料請求 モデルハウス来場予約 モデルハウス来場予約 ページの先頭へ プレミアム会員登録 電話からお問い合わせ